YDP
2025
Mission
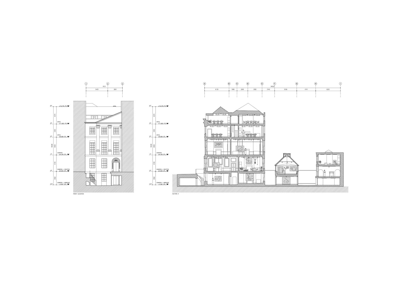
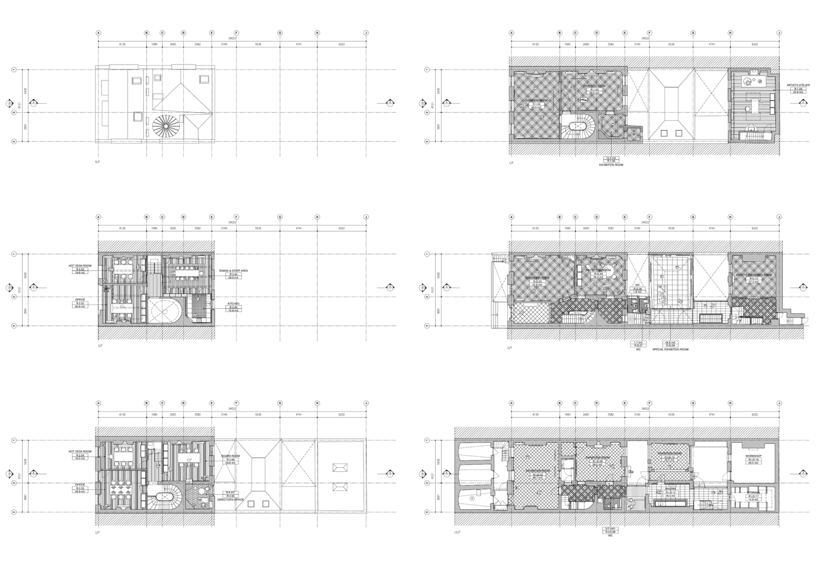
Transformation of a Georgian Landmark into a Contemporary Art Space
1'000 SQM
built
Team
YDP (Client), BEAU (Architect), Williams Architecture (Local Architect & heritage consultant), Mason Navarro Pledge (SE), WP3 (MEP), Westgreen (Contractor), Thomas Adank (photographer)
Client
Du Yan
Location
London (UK)
2025
Mission
Transformation of a Georgian Landmark into a Contemporary Art Space
1'000 SQM
built
Team
YDP (Client), BEAU (Architect), Williams Architecture (Local Architect & heritage consultant), Mason Navarro Pledge (SE), WP3 (MEP), Westgreen (Contractor), Thomas Adank (photographer)
Client
Du Yan
Location
London (UK)